Habitatge unifamiliar aïllat

Es tracta del projecte bàsic i executiu d’un habitatge aïllat de nova planta en un petit poble, en la zona de l’eixample.

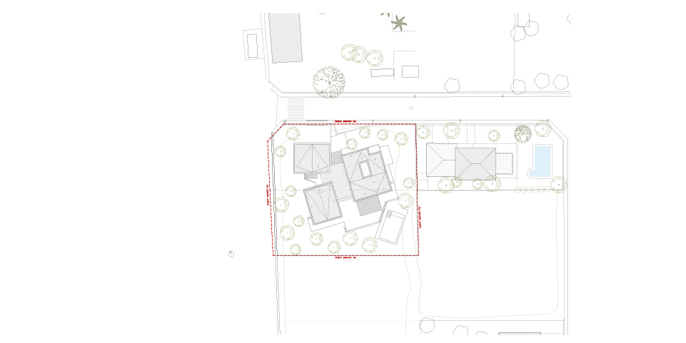
L’habitatge es caracteritza per la possibilitat d’adaptació a les diferents fases de la vida d’una família nombrosa. El conformen tres volums: el volum principal, amb un pati interior que distribueix el programa al seu voltant, compta amb un dormitori doble. Aquest pot funcionar com a habitatge per ell mateix. La resta de volums que el complementen són la zona de nit i estar, i el garatge. Aquests s’uneixen mitjançant un nucli central que fa de rebedor i distribuidor, i que en moments puntuals actua com una gran sala de trobada. Així doncs, el volum principal pot ser utilitzat de manera independent, o bé ser la primera fase de construcció.

Aquest joc de volums vol integrar l’espai exterior en ell, per això es comunica de manera permeable en cadascuna de les façanes. Donant lloc, a la cara sud, a la zona porxada que connecta amb la terrassa i la piscina, envoltada de vegetació i arbrat nou, que dona frescor i intimitat a l’usuari.

Tècnics col·laboradors: J. Castellví, MM Vidal i E. Vila
Càlcul d’instal·lacions: JM. Delmuns
Càlcul d’estructures: A. Pujol
Renderització: Nexe Visual

Promotor: privat
Lloc: Baix Camp
Superfície: 1.300m² (C. 305m²)
Any: 2023